instalacja gazowa projekt i wykonanie Sulejówek Otwock W-wa
Sulejówek Pokaż na mapie ›
Odświeżone: Czwartek, 02 Październik, 2025 12:04
Szczegóły ogłoszenia
- Kategoria: Usługi / Usługi remontowe i budowlane
Opis oferty
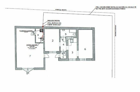
Witam,Wykonujemy projekty instalacji gazowej dla domów jednorodzinnych nowych jak też na potrzeby przeróbki instalacji w domu, w mieszkaniu w bloku oraz budynkach usługowych.
Współpracujemy z geodetami w celu wykonania mapy do celów projektowych.
Na podstawie projektu sporządzamy wycenę wykonania instalacji wraz z kompletną dokumentacją powykonawczą do gazowni i nadzoru budowlanego.
Wykonujemy również naprawy, przeróbki i doszczelnienie instalacji gazowych.
Mój teren działania to Sulejówek, Halinów, Mińsk Mazowiecki, Otwock, Józefów, Wiązowna, Warszawa, Wołomin, Marki, Zielonka.
Zapraszam do kontaktu w celu wyceny.
Sprawdź zainteresowanie tym ogłoszeniem
Wyświetlenia
Data dodania
Ostatnio widziany
Obserwujących
Wysłane zapytania
Odsłony telefonu
Artur
Konto prywatne
Na Lento.pl od 17 maj 2024
Strona użytkownika
- Wypromuj ogłoszenie
- Zgłoś naruszenie
- Drukuj ulotkę
- Edytuj/usuń ogłoszenie
- Udostępnij ogłoszenie
- Dodaj na Facebook




